
入門級私家影院適合一般家庭使用,對音效沒有極致要求,使用面積不太大或沒有獨立空間,性價比較高。入門級的影院定制方案,以性價比為出發點,又能夠滿足一般家庭的影音娛樂需求,影院的效果在感官體驗上與普通的商業電影院相媲美。
入門級的私家影院對安裝環境的可選性較多,家庭環境下的客廳、臥室、書房、閣樓等均可用來打造家庭影院,如果是獨立房間、地下室、車庫等,效果更佳。理想的房型建議為長方形,房間面積約為12m2--30m2。若房間面積較大,為保證影院效果,建議從功率角度升級配置。
實現功能
-
藍光電影
Blu ray
-
聽音樂
Music
-
電視節目
TV
-
網絡播放
Network play
-
游戲
Game
-
卡拉OK
Karaoke

藍光電影
Blu ray

聽音樂
Music

電視節目
TV

網絡播放
Network play

游戲
Game

卡拉OK
Karaoke
操作方式
-
搖控器控制
-
設備自帶APP控制
-
中央智能控制(未配置)
遙控器控制
Remote control
每臺設備有1個搖控器分別控制,無需增加成本且穩定。適合小系統,設備不多或使用者熟悉設備系統的操作和應用。
設備自帶APP控制
APP control equipment
部分影音設備有自帶的APP無線控制軟件,如功放、藍光DVD和其它網絡播放器。適合小系統或對網絡系統熟悉的用戶使用。
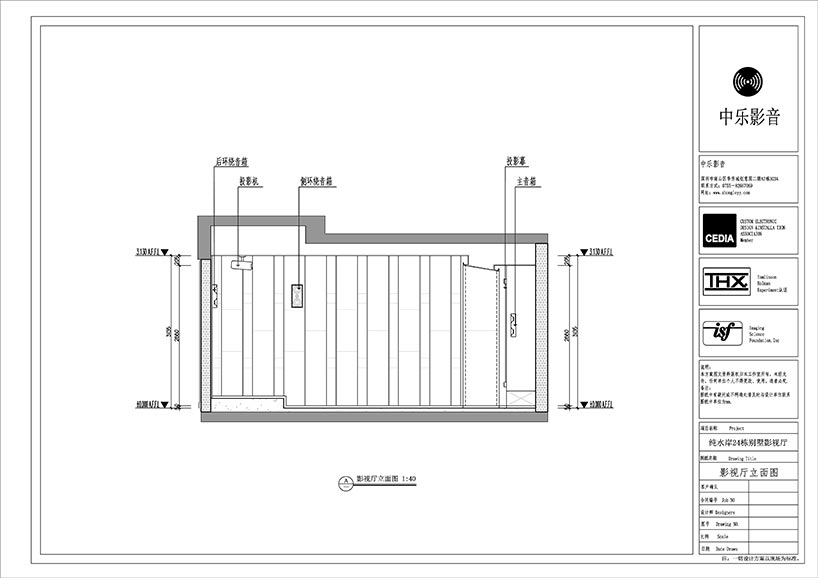
示例圖紙
-

- (平面布局)
-

- (平面布局)
-

- (平面布局)
-

- (平面布局)
-

- (設備系統框架圖)
設備選型建議


